茅場町第2平和ビル 10階
物件概要
物件番号
646-00049-90物件名
茅場町第2平和ビル所在地
- 東京都中央区日本橋茅場町2-9-8
- アクセスマップ
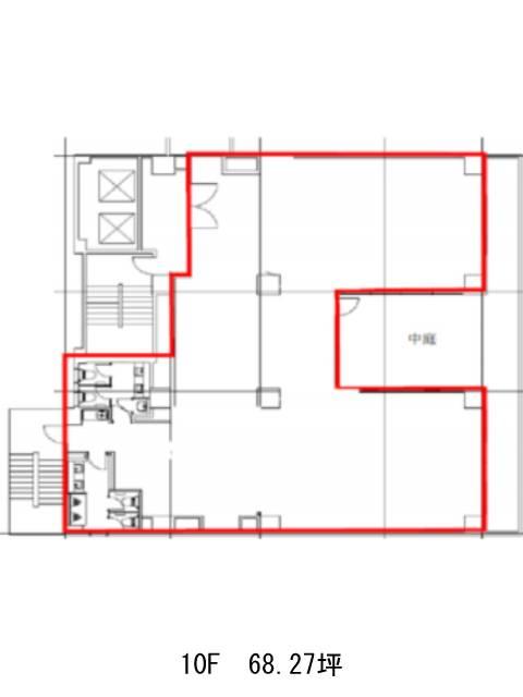
面積
68.27坪賃料(共益費含)
:応相談応相談
入居日
即保証金
応相談礼金
なし更新料
なし償却費
なし竣工
1991年9月構造
SRC規模
地上10階/地下1階トイレ
男女別空調
個別空調エレベーター
有セキュリティ
有駐車場
有耐震
新耐震基準基準階天井高
2400mm空室延床面積
229.63坪情報更新日
2025/11/12茅場町第2平和ビルのテナント募集中区画
| 階数 | 面積 | 賃料(共益費含む) | 保証金 | 入居可能日 | 検討リスト | 詳細 |
|---|---|---|---|---|---|---|
| 5 | 80.68坪 | 応相談(応相談) | 応相談 | 相談 | ||
| 6 | 80.68坪 | 応相談(応相談) | 応相談 | 相談 | ||
| 10 | 68.27坪 | 応相談(応相談) | 応相談 | 即 |
…新着物件
アクセス
茅場町第2平和ビルの物件情報
茅場町第2平和ビル(中央区日本橋茅場町)は茅場町駅(2番出口)から徒歩1分の賃貸オフィスです。新大橋通り通りから2軒目に建てられている10階建てのビルです。1991年竣工ですが2009年にエントランスとエレベーターホールをリニューアルしているので綺麗です。外観は御影石を使用していて高級感があります。トイレは男女別にあります。室内に柱がありますがOAフロアのため、レイアウトはしやすいでしょう。。飲食店やカフェ、コンビニなどが近くにあるので、食事が気軽に出来ます。郵便局、銀行も近くにあるので、オフィスワーカーにとって便利でしょう。茅場町第2平和ビルは茅場町駅(2番出口)の他に八丁堀駅(A5番出口)徒歩5分、日本橋駅(D1番出口)徒歩8分で利用も可能です。

