久松ビル 3階
物件概要
物件番号
647-00028-10物件名
久松ビル所在地
- 東京都中央区日本橋久松町10-10
- アクセスマップ
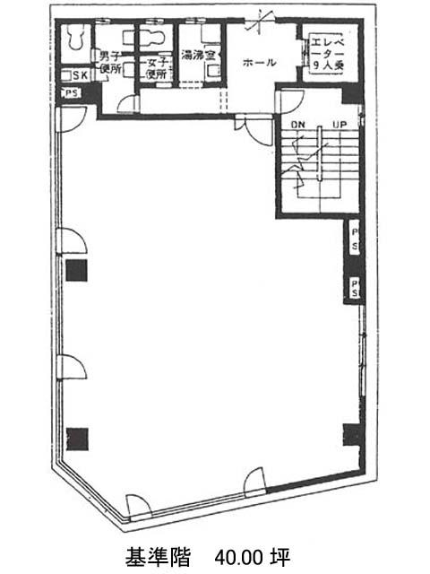
面積
40.00坪賃料(共益費含)
月額612,000円(15,301円/坪)
入居日
相談保証金
2,618,400円礼金
なし更新料
新1ケ月償却費
2ケ月竣工
1988年4月構造
RC規模
地上6階/地下1階トイレ
男女別空調
個別空調エレベーター
有セキュリティ
有駐車場
無耐震
新耐震基準基準階天井高
空室延床面積
40.00坪情報更新日
2025/11/04久松ビルのテナント募集中区画
| 階数 | 面積 | 賃料(共益費含む) | 保証金 | 入居可能日 | 検討リスト | 詳細 |
|---|---|---|---|---|---|---|
| 3 | 40.00坪 | 612,000円/月(15,301円/坪) | 261万円 | 相談 |
…新着物件
アクセス
久松ビルの物件情報
久松ビル(中央区日本橋久松町)は浜町駅(A1番出口)から徒歩4分の賃貸オフィスです。清洲橋通りを一本西へ入った角地にある、6階建てのビルです。御影石調の外壁の、落ち着いたデザインの外観です。基準階は40坪の長方形に近い形です。柱が邪魔をしない配置になっているので、レイアウトしやすい間取りです。室外に給湯室と男女別トイレが設置されています。南向きの立地と窓の多さで、日当たりの良さが期待できます。道を挟んで向かいのブロックには、区立幼稚園と小学校、久松警察署があり、環境の良い立地です。久松ビルは浜町駅(A1番出口)の他に馬喰横山駅(A3番出口)徒歩5分、東日本橋駅(B1番出口)徒歩5分で利用も可能です。

