7階は現在募集がありません
1フロア募集区画あり

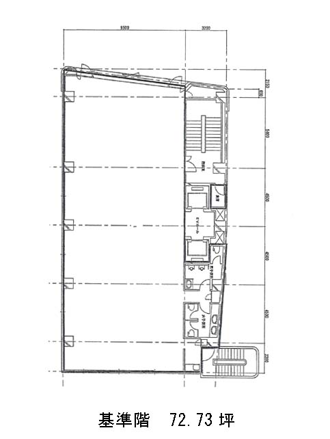
FORECAST人形町PLACE 7階

前の写真 次の写真

物件概要

物件番号

652-00178-70

物件名

FORECAST人形町PLACE

所在地

面積

72.73坪

賃料(共益費含)


入居日

募集終了

保証金

礼金

更新料

償却費

竣工

1984年2月

構造

SRC

規模

地上8階

トイレ

男女別

空調

個別空調

エレベーター

セキュリティ

駐車場

耐震

新耐震基準

基準階天井高

2600mm

空室延床面積

72.73坪

最寄駅

情報更新日

2025/11/12

FORECAST人形町PLACEのテナント募集中区画

階数 面積 賃料(共益費含む) 保証金 入居可能日 検討リスト 詳細
3 72.73坪 応相談(応相談) 応相談
…新着物件

アクセス

FORECAST人形町PLACEの物件情報

FORECAST人形町PLACE(中央区日本橋人形町)は人形町駅(A5番出口)から徒歩1分の賃貸オフィスです。
1984年竣工。2003年にはリニューアル工事が実施されており、メンテナンスが行き届いたオフィスビルです。外観は全体的に白のパネル張りで、とてもシンプルな構造になっております。。基準階は約72坪あり、室内はほぼ長方形の形をしているため、比較的レイアウトは組みやすいでしょう。貸室内にはOAフロアが備えられており、トイレは男女別となっております。駐車場はありませんが、近くにパーキングがあるため、社用車を使う場合も便利です周辺には、コンビニや飲食店などが複数あるためとても利便性が高いです。またビルの1Fにもカフェが入っているため、休憩時などに活用しやすいでしょう。
FORECAST人形町PLACEは人形町駅(A5番出口)の他に水天宮前駅(8番出口)徒歩5分、小伝馬町駅(3番出口)徒歩9分で利用も可能です。

近隣のエリア・駅から探す