HF日本橋大伝馬町ビルディング 1階
物件概要
物件番号
653-00001-10物件名
HF日本橋大伝馬町ビルディング所在地
- 東京都中央区日本橋大伝馬町2-7
- アクセスマップ
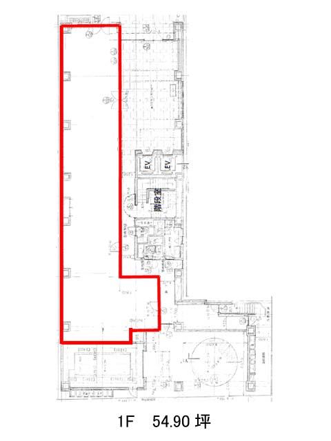
面積
54.90坪賃料(共益費含)
:応相談応相談
入居日
2025年12月中旬保証金
応相談礼金
なし更新料
なし償却費
なし竣工
1988年3月構造
規模
地上9階/地下1階トイレ
男女別空調
個別空調エレベーター
有セキュリティ
有駐車場
有耐震
新耐震基準基準階天井高
2650mm空室延床面積
54.90坪情報更新日
2025/10/16HF日本橋大伝馬町ビルディングのテナント募集中区画
| 階数 | 面積 | 賃料(共益費含む) | 保証金 | 入居可能日 | 検討リスト | 詳細 |
|---|---|---|---|---|---|---|
| 1 | 54.90坪 | 応相談(応相談) | 応相談 | 2025年12月中旬 |
…新着物件
アクセス
HF日本橋大伝馬町ビルディングの物件情報
HF日本橋大伝馬町ビルディング(中央区日本橋大伝馬町)は小伝馬町駅(3番出口)から徒歩3分の賃貸オフィスです。外観はベージュトーンの石造りで、落ち着いた印象を与えます。エントランスはガラス張りで明るく、来訪者を迎える1階エレベーターホールは広さと質感の両立が図られた設計です。
貸室は基本的に1フロア1テナント。フロアによってサイズが異なり、それぞれ50坪台~120坪台です。エレベーターは2基設置済みで、貸室へはダイレクトイン仕様。水回りも室内に設けられており、プライバシー性を高めています。
セキュリティは機械警備を採用。駅アクセスも良好で、駅から本物件までの道のりにコンビニエンスストアもあります。
HF日本橋大伝馬町ビルディングは小伝馬町駅(3番出口)の他に新日本橋駅(5番出口)徒歩6分、馬喰横山駅(A1番出口)徒歩7分で利用も可能です。

