3階は現在募集がありません
1フロア募集区画あり

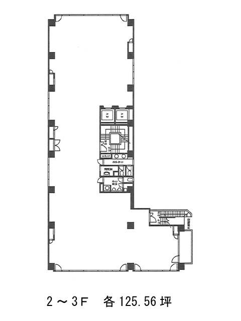
HF日本橋大伝馬町ビルディング 3階

前の写真 次の写真

物件概要

物件番号

653-00001-30

物件名

HF日本橋大伝馬町ビルディング

所在地

面積

125.56坪

賃料(共益費含)


入居日

募集終了

保証金

礼金

更新料

償却費

竣工

1988年3月

構造

規模

地上9階/地下1階

トイレ

男女別

空調

個別空調

エレベーター

セキュリティ

駐車場

耐震

新耐震基準

基準階天井高

2650mm

空室延床面積

54.90坪

最寄駅

情報更新日

2025/10/16

HF日本橋大伝馬町ビルディングのテナント募集中区画

階数 面積 賃料(共益費含む) 保証金 入居可能日 検討リスト 詳細
1 54.90坪 応相談(応相談) 応相談 2025年12月中旬
…新着物件

アクセス

HF日本橋大伝馬町ビルディングの物件情報

HF日本橋大伝馬町ビルディング(中央区日本橋大伝馬町)は小伝馬町駅(3番出口)から徒歩3分の賃貸オフィスです。
外観はベージュトーンの石造りで、落ち着いた印象を与えます。エントランスはガラス張りで明るく、来訪者を迎える1階エレベーターホールは広さと質感の両立が図られた設計です。
貸室は基本的に1フロア1テナント。フロアによってサイズが異なり、それぞれ50坪台~120坪台です。エレベーターは2基設置済みで、貸室へはダイレクトイン仕様。水回りも室内に設けられており、プライバシー性を高めています。
セキュリティは機械警備を採用。駅アクセスも良好で、駅から本物件までの道のりにコンビニエンスストアもあります。

HF日本橋大伝馬町ビルディングは小伝馬町駅(3番出口)の他に新日本橋駅(5番出口)徒歩6分、馬喰横山駅(A1番出口)徒歩7分で利用も可能です。

近隣のエリア・駅から探す