2階は現在募集がありません
3フロア募集区画あり

日本橋浜町ビル 2階

前の写真 次の写真

物件概要

物件番号

657-00083-10

物件名

日本橋浜町ビル

所在地

面積

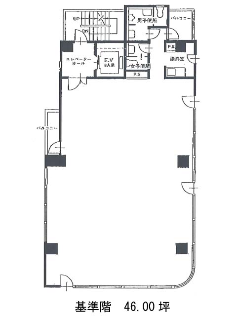
46.00坪

賃料(共益費含)


入居日

募集終了

保証金

礼金

更新料

償却費

竣工

1987年3月

構造

SRC

規模

地上9階

トイレ

男女別

空調

個別空調

エレベーター

セキュリティ

駐車場

耐震

新耐震基準

基準階天井高

2550mm

空室延床面積

138.00坪

最寄駅

情報更新日

2025/08/20

日本橋浜町ビルのテナント募集中区画

階数 面積 賃料(共益費含む) 保証金 入居可能日 検討リスト 詳細
5 46.00坪 733,700円/月(15,950円/坪) 331万円
7 46.00坪 733,700円/月(15,950円/坪) 331万円
9 46.00坪 733,700円/月(15,950円/坪) 331万円
…新着物件

アクセス

日本橋浜町ビルの物件情報

日本橋浜町ビル(中央区日本橋浜町)は浜町駅(出口)から徒歩3分の賃貸オフィスです。
清洲橋通り沿いの角地に建つ、9階建てのビルです。白いパネルとベージュのタイルを使った、清潔感のある外観です。基準階は46坪の長方形の間取りで、柱が邪魔をしないつくりになっているので、レイアウトしやすいと思います。床はフリーアクセスになっているので、配線の自由度も高いです。給湯室と男女別トイレは室内に設置されています。近くにある浜町公園は、中央区の中で最大の面積を誇る広さです。公園地下には有料駐車場があり、約90台分の駐車スペースがあります。
日本橋浜町ビルは浜町駅(出口)の他に水天宮前駅(5番出口)徒歩7分、人形町駅(A1番出口)徒歩7分で利用も可能です。

近隣のエリア・駅から探す