日本橋浜町ビル 5階
物件概要
物件番号
657-00083-30物件名
日本橋浜町ビル所在地
- 東京都中央区日本橋浜町2-28-1
- アクセスマップ
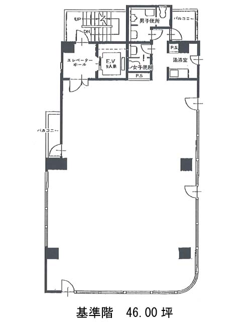
面積
46.00坪賃料(共益費含)
月額733,700円(15,950円/坪)
入居日
即保証金
3,312,000円礼金
1ケ月更新料
新1ケ月償却費
なし竣工
1987年3月構造
SRC規模
地上9階トイレ
男女別空調
個別空調エレベーター
有セキュリティ
有駐車場
有耐震
新耐震基準基準階天井高
2550mm空室延床面積
138.00坪情報更新日
2025/08/20日本橋浜町ビルのテナント募集中区画
| 階数 | 面積 | 賃料(共益費含む) | 保証金 | 入居可能日 | 検討リスト | 詳細 |
|---|---|---|---|---|---|---|
| 5 | 46.00坪 | 733,700円/月(15,950円/坪) | 331万円 | 即 | ||
| 7 | 46.00坪 | 733,700円/月(15,950円/坪) | 331万円 | 即 | ||
| 9 | 46.00坪 | 733,700円/月(15,950円/坪) | 331万円 | 即 |
…新着物件
アクセス
日本橋浜町ビルの物件情報
日本橋浜町ビル(中央区日本橋浜町)は浜町駅(出口)から徒歩3分の賃貸オフィスです。清洲橋通り沿いの角地に建つ、9階建てのビルです。白いパネルとベージュのタイルを使った、清潔感のある外観です。基準階は46坪の長方形の間取りで、柱が邪魔をしないつくりになっているので、レイアウトしやすいと思います。床はフリーアクセスになっているので、配線の自由度も高いです。給湯室と男女別トイレは室内に設置されています。近くにある浜町公園は、中央区の中で最大の面積を誇る広さです。公園地下には有料駐車場があり、約90台分の駐車スペースがあります。日本橋浜町ビルは浜町駅(出口)の他に水天宮前駅(5番出口)徒歩7分、人形町駅(A1番出口)徒歩7分で利用も可能です。

