5階は現在募集がありません
スプラウト日本橋浜町 5階
物件概要
スプラウト日本橋浜町のテナント募集中区画
現在、空室がございません。
アクセス
スプラウト日本橋浜町の物件情報
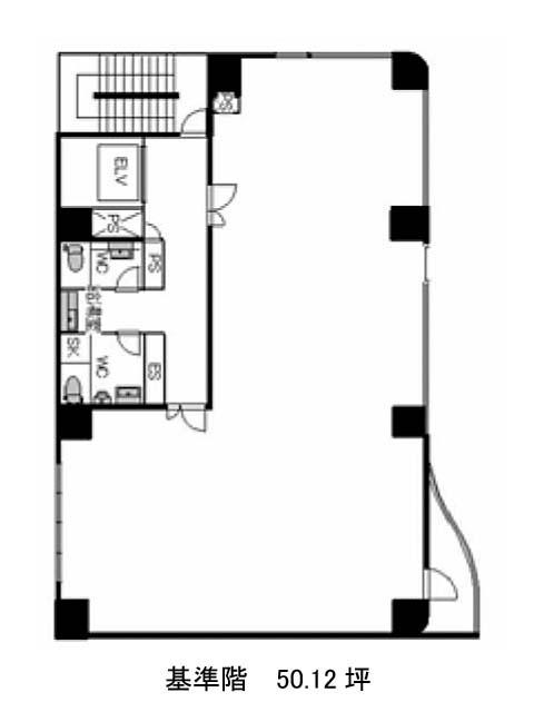
スプラウト日本橋浜町(中央区日本橋浜町)は水天宮前駅(1b番出口)から徒歩7分の賃貸オフィスです。外観は全体的に淡い茶系を基調とした色合いで、窓がライン状に並んでおり、視認性の高さがうかがえます。エントランスホールやエレベーターホールはとても落ち着いた空間となっております。基準階は約51坪あり、室内はL字型の形をしていますが、柱は壁に沿ってあるため、比較的レイアウトは組みやすいでしょう。ビル内にはOAフロアが備えられており、トイレは男女別となっております。また周辺にはコンビニや飲食店などがあるため、ランチも楽しめるでしょう。スプラウト日本橋浜町は水天宮前駅(1b番出口)の他に浜町駅(出口)徒歩7分、人形町駅(A2番出口)徒歩10分で利用も可能です。

