4階は現在募集がありません
ルート浜町ビル 4階
物件概要
ルート浜町ビルのテナント募集中区画
現在、空室がございません。
アクセス
ルート浜町ビルの物件情報
ルート浜町ビル(中央区日本橋浜町)は浜町駅(出口)から徒歩6分の賃貸オフィスです。
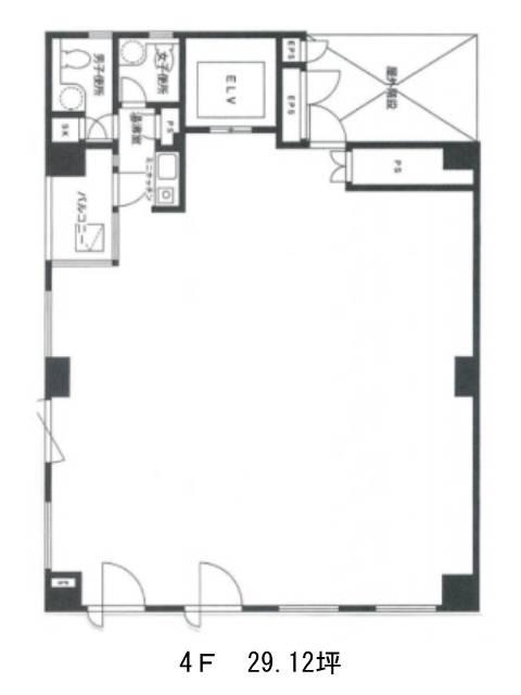
新大橋通りを南へ3本入ったところの角地に建つ、7階建てのビルです。1階部分の緑のレンガと緑の屋根の組み合わせが可愛いらしい外観です。基準階は28.96坪の正方形に近い無柱空間で、レイアウトしやすい間取りになっています。室内に給湯室と男女別トイレが設置されています。南向きの窓の多い構造なので、採光の豊かさが期待できます。近隣に大きめの時間貸し駐車場があるので、車での来客者の対応がしやすいと思います。
ルート浜町ビルは浜町駅(出口)の他に水天宮前駅(5番出口)徒歩9分、森下駅(A1番出口)徒歩9分で利用も可能です。

