堀一ビル 3階
物件概要
物件番号
659-00020-40物件名
堀一ビル所在地
- 東京都中央区日本橋堀留町1-3-18
- アクセスマップ
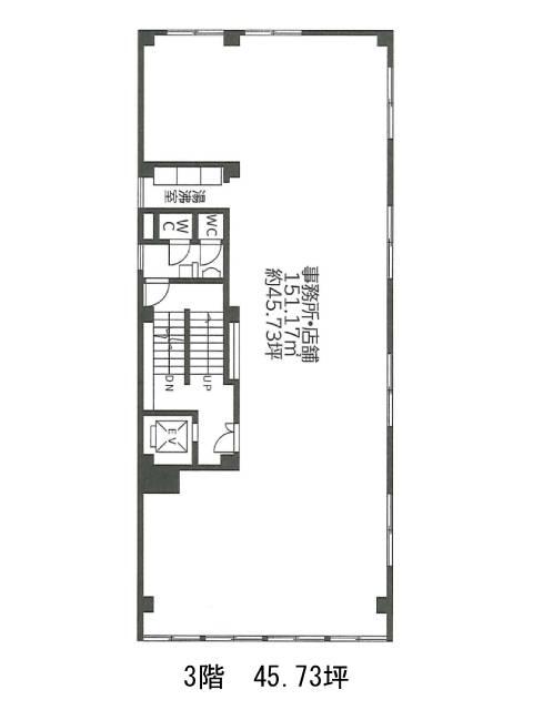
面積
45.73坪賃料(共益費含)
月額528,000円(11,546円/坪)
入居日
即保証金
2,400,139円礼金
なし更新料
新1ケ月償却費
1ケ月竣工
確認中構造
RC規模
地上6階/地下1階トイレ
男女別空調
個別空調エレベーター
有セキュリティ
有駐車場
無耐震
確認中基準階天井高
3000mm空室延床面積
45.73坪情報更新日
2025/09/02堀一ビルのテナント募集中区画
| 階数 | 面積 | 賃料(共益費含む) | 保証金 | 入居可能日 | 検討リスト | 詳細 |
|---|---|---|---|---|---|---|
| 3 | 45.73坪 | 528,000円/月(11,546円/坪) | 240万円 | 即 |
…新着物件
アクセス
堀一ビルの物件情報
堀一ビル(中央区日本橋堀留町)は小伝馬町駅(3番出口)から徒歩4分の賃貸オフィスです。基準階約46坪、リニューアルによって快適性が向上したコンパクトオフィスのご紹介です。室内は天井が高く、面積以上に開放感のある空間が魅力。
設備面では、個別空調や男女別トイレ、機械警備が整備されており、安心かつ効率的な業務環境を実現します。レイアウトは中央に水回り・EVが集約されており、前後を執務スペースとして使い分けることで動線設計もしやすく、実用性の高い間取りです。
周辺にはコンビニや銀行、飲食店が充実しており、特に人形町エリアまでも徒歩圏内とあってランチやアフター業務の選択肢にも困りません。堀一ビルは小伝馬町駅(3番出口)の他に新日本橋駅(5番出口)徒歩6分、人形町駅(A5番出口)徒歩8分で利用も可能です。

