3階は現在募集がありません
はごろもビル 3階
物件概要
はごろもビルのテナント募集中区画
現在、空室がございません。
アクセス
はごろもビルの物件情報
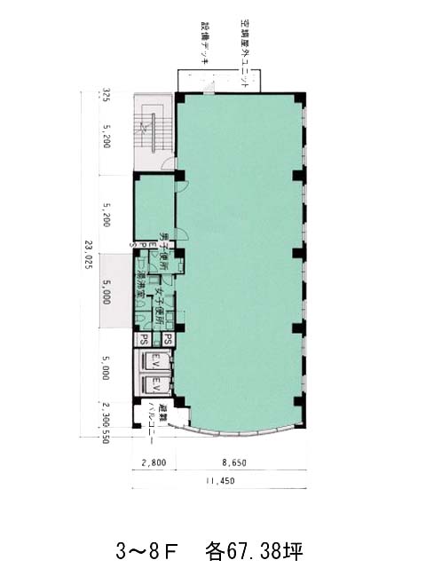
はごろもビル(中央区八丁堀)は八丁堀駅(A5番出口)から徒歩5分の賃貸オフィスです。外観は全体的にグレー系を基調としたガラスウォールが大変美しいデザイン性が高い建物です。周辺には、コンビニや飲食店などが複数あるためとても利便性が高いです。またビルの地下1Fにも飲食店が入っているため、休憩時などに活用しやすいでしょう。ビル内のトイレは男女別となっており、駐車場はありませんが、近くにパーキングがあるため、社用車を使う場合も便利です。基準階は約67坪あり、室内は長方形の整形オフィスのため、効率の良いレイアウトが組めそうです。はごろもビルは八丁堀駅(A5番出口)の他に茅場町駅(12番出口)徒歩5分、宝町駅(A8番出口)徒歩7分で利用も可能です。

