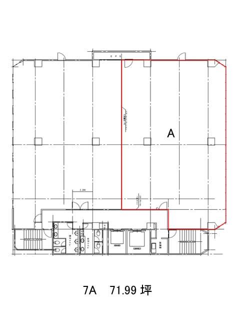
7階 7Aは現在募集がありません
大橋セントラルビル 7階 7A
物件概要
大橋セントラルビルのテナント募集中区画
現在、空室がございません。
アクセス
大橋セントラルビルの物件情報
大橋セントラルビル(中野区中央)は東中野駅(東口)から徒歩9分の賃貸オフィスです。神田川にほど近い大久保通りに面し、1階にスーパーマーケット、近隣にコンビニ、郵便局がある利便性の高いエリアに位置するビルです。1987年竣工、地上8階・地下1階、鉄骨鉄筋コンクリート造で、外壁はベージュのタイルで清潔感ある外観です。OAフロア、個別空調、男女別トイレ、エレベーター2基を完備しており、セキュリティは機械警備を導入しております。基準階約142坪で、貸室は長方形で柱があるため、区画に分けて考えればレイアウトの自由度は高いです。大橋セントラルビルは東中野駅(東口)の他に中野坂上駅(A1番出口)徒歩9分、大久保駅(北口)徒歩14分で利用も可能です。

