5階は現在募集がありません
2フロア募集区画あり

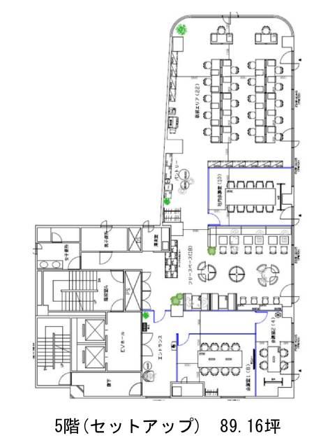
五反田佑気ビル 5階

前の写真 次の写真

物件概要

物件番号

754-00319-34

物件名

五反田佑気ビル

所在地

面積

89.16坪

賃料(共益費含)


入居日

募集終了

保証金

礼金

更新料

償却費

竣工

1991年7月

構造

SRC

規模

地上10階/地下1階

トイレ

男女別

空調

個別空調

エレベーター

セキュリティ

駐車場

耐震

新耐震基準

基準階天井高

2450mm

空室延床面積

161.76坪

最寄駅

情報更新日

2025/12/02

五反田佑気ビルのテナント募集中区画

階数 面積 賃料(共益費含む) 保証金 入居可能日 検討リスト 詳細
3 72.60坪 応相談(応相談) 応相談 2026年2月上旬
7 89.16坪 応相談(応相談) 応相談
…新着物件

アクセス

五反田佑気ビルの物件情報

五反田佑気ビル(品川区西五反田)は大崎広小路駅(出口)から徒歩3分の賃貸オフィスです。
1991年竣工、地上10階地下1階建SRC造のビルです。白く丸みを帯びた外壁をしています。1階は時間貸し駐車場になっており、ご案内時の目印となるでしょう。貸室は80坪台のものが多く、中規模のオフィスをお探しの企業様によいでしょう。設備仕様として、EV2基・個別空調・給湯室・男女別トイレがそろっています。セキュリティは機械警備が導入されています。周辺は中層階のオフィスビル・マンションが建ち並ぶエリアとなっております。
五反田佑気ビルは大崎広小路駅(出口)の他に五反田駅(出口)徒歩6分、大崎駅(西口)徒歩11分で利用も可能です。

近隣のエリア・駅から探す