五反田佑気ビル 3階新着
物件概要
物件番号
754-00319-40物件名
五反田佑気ビル所在地
- 東京都品川区西五反田8-2-8
- アクセスマップ
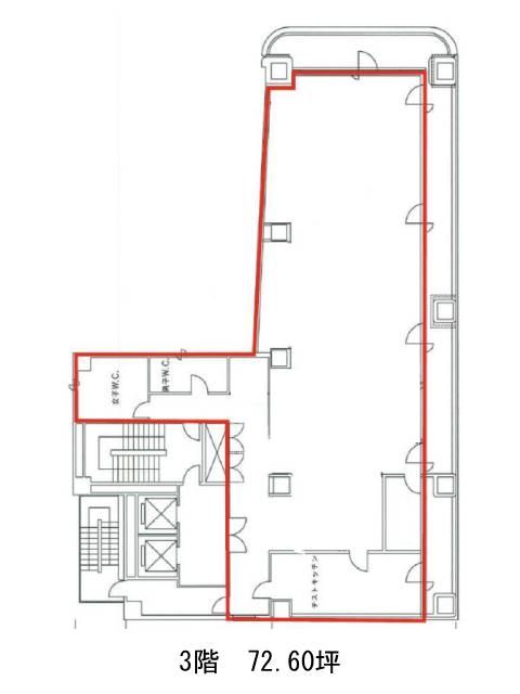
面積
72.60坪賃料(共益費含)
:応相談応相談
入居日
2026年2月上旬保証金
応相談礼金
なし更新料
なし償却費
なし竣工
1991年7月構造
SRC規模
地上10階/地下1階トイレ
不明空調
個別空調エレベーター
有セキュリティ
有駐車場
無耐震
新耐震基準基準階天井高
2450mm空室延床面積
161.76坪情報更新日
2025/12/02五反田佑気ビルのテナント募集中区画
| 階数 | 面積 | 賃料(共益費含む) | 保証金 | 入居可能日 | 検討リスト | 詳細 |
|---|---|---|---|---|---|---|
| 3 | 72.60坪 | 応相談(応相談) | 応相談 | 2026年2月上旬 | ||
| 7 | 89.16坪 | 応相談(応相談) | 応相談 | 即 |
…新着物件
アクセス
五反田佑気ビルの物件情報
五反田佑気ビル(品川区西五反田)は大崎広小路駅(出口)から徒歩3分の賃貸オフィスです。1991年竣工、地上10階地下1階建SRC造のビルです。白く丸みを帯びた外壁をしています。1階は時間貸し駐車場になっており、ご案内時の目印となるでしょう。貸室は80坪台のものが多く、中規模のオフィスをお探しの企業様によいでしょう。設備仕様として、EV2基・個別空調・給湯室・男女別トイレがそろっています。セキュリティは機械警備が導入されています。周辺は中層階のオフィスビル・マンションが建ち並ぶエリアとなっております。五反田佑気ビルは大崎広小路駅(出口)の他に五反田駅(出口)徒歩6分、大崎駅(西口)徒歩11分で利用も可能です。

