2階は現在募集がありません
1フロア募集区画あり

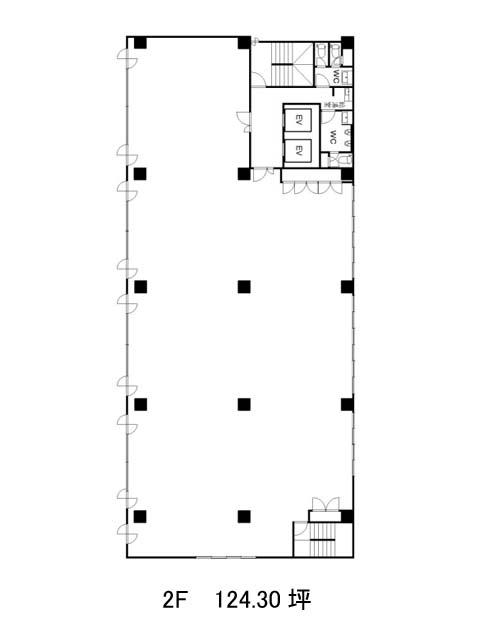
両国ミハマビル 2階

前の写真 次の写真

物件概要

物件番号

866-00016-10

物件名

両国ミハマビル

所在地

面積

124.30坪

賃料(共益費含)


入居日

募集終了

保証金

礼金

更新料

償却費

竣工

1990年3月

構造

SRC

規模

地上8階

トイレ

男女別

空調

個別空調

エレベーター

セキュリティ

駐車場

耐震

新耐震基準

基準階天井高

空室延床面積

66.88坪

最寄駅

情報更新日

2025/11/12

両国ミハマビルのテナント募集中区画

階数 面積 賃料(共益費含む) 保証金 入居可能日 検討リスト 詳細
7 66.88坪 応相談(応相談) 応相談 2025年12月下旬
…新着物件

アクセス

両国ミハマビルの物件情報

両国ミハマビル(墨田区両国)は両国駅(西口)から徒歩4分の賃貸オフィスです。
両国ミハマビルは両国駅(西口)の他に馬喰町駅(5番出口)徒歩9分、浅草橋駅(A1番出口)徒歩9分で利用も可能です。

近隣のエリア・駅から探す