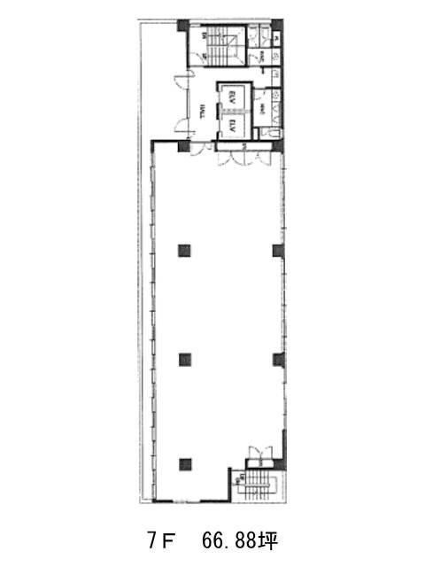
両国ミハマビル 7階
物件概要
物件番号
866-00016-80物件名
両国ミハマビル所在地
- 東京都墨田区両国1-12-8
- アクセスマップ
面積
66.88坪賃料(共益費含)
:応相談応相談
入居日
2025年12月下旬保証金
応相談礼金
なし更新料
新1ケ月償却費
2ケ月竣工
1990年3月構造
SRC規模
地上8階トイレ
男女別空調
個別空調エレベーター
有セキュリティ
有駐車場
無耐震
新耐震基準基準階天井高
空室延床面積
66.88坪情報更新日
2025/12/10両国ミハマビルのテナント募集中区画
| 階数 | 面積 | 賃料(共益費含む) | 保証金 | 入居可能日 | 検討リスト | 詳細 |
|---|---|---|---|---|---|---|
| 7 | 66.88坪 | 応相談(応相談) | 応相談 | 2025年12月下旬 |
…新着物件
アクセス
両国ミハマビルの物件情報
両国ミハマビル(墨田区両国)は両国駅(西口)から徒歩4分の賃貸オフィスです。両国ミハマビルは両国駅(西口)の他に馬喰町駅(5番出口)徒歩9分、浅草橋駅(A1番出口)徒歩9分で利用も可能です。

