7階は現在募集がありません
2フロア募集区画あり

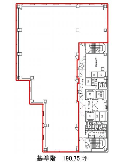
フロンティアグラン西新宿 7階

前の写真 次の写真

物件概要

物件番号

237-00684-1

物件名

フロンティアグラン西新宿

所在地

面積

190.75坪

賃料(共益費含)


入居日

募集終了

保証金

礼金

更新料

償却費

竣工

1990年3月

構造

SRC

規模

地上12階/地下3階

トイレ

男女別

空調

セントラル

エレベーター

セキュリティ

駐車場

耐震

新耐震基準

基準階天井高

2650mm

空室延床面積

143.68坪

最寄駅

情報更新日

2025/11/21

フロンティアグラン西新宿のテナント募集中区画

階数 面積 賃料(共益費含む) 保証金 入居可能日 検討リスト 詳細
1 50.48坪 1,999,008円/月(39,600円/坪) 1,090万円
8 93.20坪 応相談(応相談) 応相談 2026年4月上旬
…新着物件

アクセス

フロンティアグラン西新宿の物件情報

フロンティアグラン西新宿(新宿区西新宿)は初台駅(東口)から徒歩8分の賃貸オフィスです。
都庁前駅エリアの落ち着いた街並みに佇む、石造りの外観が印象的なオフィスビル。重厚感と上質さを兼ね備えたデザインが、来訪者にも安心感を与える佇まいです。
基準階は最大約190坪とゆとりのあるフロア構成で、小規模からの分割にも柔軟に対応。2023年には共用部含め全面リニューアルが実施され、設備面でも快適性が向上しています。
共用部には、ミーティングルームやビジネスラウンジをはじめ、ワークアウトエリアやゴルフスタジオ、ルーフトップテラスなど、多様な用途に対応した施設を備えており、働く環境に充実感をもたらします。さらに、日本国内ではまだ珍しい“ペットフレンドリー”な区画も設けられており、ペットと共に過ごせる働き方にも対応。滑りにくい床材など、ペットにも配慮された設計が特徴です。
OAフロアや機械警備、駐車場も完備しており、快適性と機能性を両立したワークプレイスとしてクオリティの高い一棟です。
フロンティアグラン西新宿は初台駅(東口)の他に都庁前駅(A5番出口)徒歩9分、新宿駅(8番出口)徒歩10分で利用も可能です。

近隣のエリア・駅から探す