7階は現在募集がありません
1フロア募集区画あり

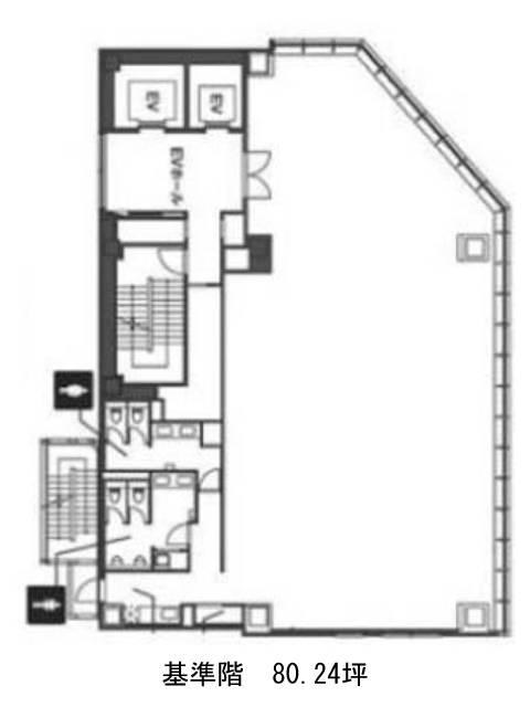
BIZCORE赤坂見附 7階

前の写真 次の写真

物件概要

物件番号

133-01024-3

物件名

BIZCORE赤坂見附

所在地

面積

80.24坪

賃料(共益費含)


入居日

募集終了

保証金

礼金

更新料

償却費

竣工

2019年3月

構造

S造

規模

地上10階/地下1階

トイレ

男女別

空調

個別空調

エレベーター

セキュリティ

駐車場

耐震

新耐震基準

基準階天井高

2800mm

空室延床面積

80.24坪

最寄駅

情報更新日

2025/12/10

BIZCORE赤坂見附のテナント募集中区画

階数 面積 賃料(共益費含む) 保証金 入居可能日 検討リスト 詳細
3 80.24坪 応相談(応相談) 応相談
…新着物件

アクセス

BIZCORE赤坂見附の物件情報

BIZCORE赤坂見附(港区赤坂)は赤坂見附駅(出口3)から徒歩1分の賃貸オフィスです。
地上10階、地下1階建ての2019年竣工の物件でとても綺麗です。屋上には、気分転換にもなる庭園があります。外観は全体的にガラス張りになっており、とてもスタイリッシュな印象です。エントランスホールやエレベーターホールはとても清潔感があり、高級感も感じられます。また周辺にはコンビニや飲食店などが複数あるため、ランチも楽しめるでしょう。ビル内にはOAフロアが備えられており、トイレは男女別となっております。
BIZCORE赤坂見附は赤坂見附駅(出口3)の他に永田町駅(8番出口)徒歩3分、赤坂駅(1番出口)徒歩8分で利用も可能です。

近隣のエリア・駅から探す