BIZCORE赤坂見附 3階
物件概要
物件番号
133-01024-4物件名
BIZCORE赤坂見附所在地
- 東京都港区赤坂3-1-2
- アクセスマップ
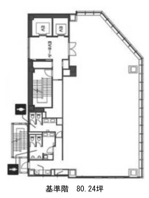
面積
80.24坪賃料(共益費含)
:応相談応相談
入居日
即保証金
応相談礼金
なし更新料
なし償却費
なし竣工
2019年3月構造
S造規模
地上10階/地下1階トイレ
男女別空調
個別空調エレベーター
有セキュリティ
有駐車場
有耐震
新耐震基準基準階天井高
2800mm空室延床面積
80.24坪情報更新日
2025/12/10BIZCORE赤坂見附のテナント募集中区画
| 階数 | 面積 | 賃料(共益費含む) | 保証金 | 入居可能日 | 検討リスト | 詳細 |
|---|---|---|---|---|---|---|
| 3 | 80.24坪 | 応相談(応相談) | 応相談 | 即 |
…新着物件
アクセス
BIZCORE赤坂見附の物件情報
BIZCORE赤坂見附(港区赤坂)は赤坂見附駅(出口3)から徒歩1分の賃貸オフィスです。地上10階、地下1階建ての2019年竣工の物件でとても綺麗です。屋上には、気分転換にもなる庭園があります。外観は全体的にガラス張りになっており、とてもスタイリッシュな印象です。エントランスホールやエレベーターホールはとても清潔感があり、高級感も感じられます。また周辺にはコンビニや飲食店などが複数あるため、ランチも楽しめるでしょう。ビル内にはOAフロアが備えられており、トイレは男女別となっております。BIZCORE赤坂見附は赤坂見附駅(出口3)の他に永田町駅(8番出口)徒歩3分、赤坂駅(1番出口)徒歩8分で利用も可能です。

