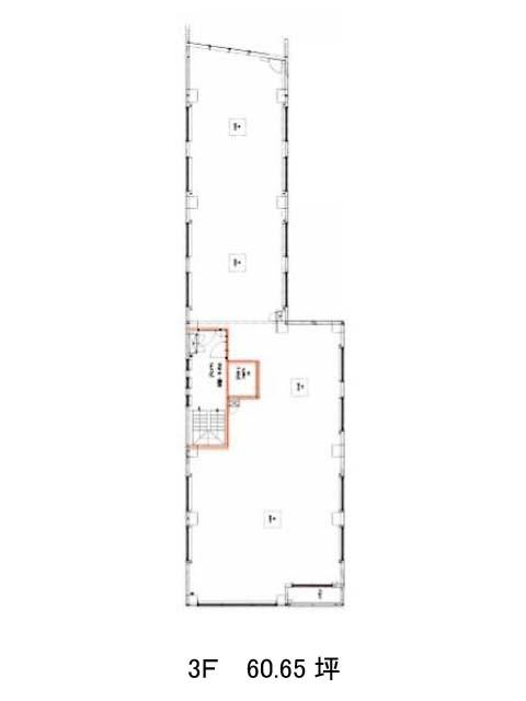
3階は現在募集がありません
第10FMGビル 3階
物件概要
第10FMGビルのテナント募集中区画
現在、空室がございません。
アクセス
第10FMGビルの物件情報
第10FMGビル(渋谷区神宮前)は北参道駅(2番出口)から徒歩10分の賃貸オフィスです。2021年竣工の築浅物件です。コンクリート打ち放しの外壁に、ブルーの大きなガラス窓が張り出した、スタイリッシュで美しい外観です。入り口やエントランスには植物が置かれ、出勤時や来訪者に癒しを与えてくれます。奥行きのある無柱の室内には窓が複数設置されており、隣が駐車場ですので、自然光や風が十分に入るでしょう。設備面は、エレベーターが1基設置されています。セキュリティには機械警備を採用していますので、仕事環境の安全性も高いといえます。周辺環境はオフィスビルや住宅、大使館などが立地する閑静なエリアです。また、郵便局やコンビニ、飲食店も徒歩圏内にありますので、利便性が高いでしょう。第10FMGビルは北参道駅(2番出口)の他に国立競技場駅(A3番出口)徒歩10分、外苑前駅(3番出口)徒歩11分で利用も可能です。

