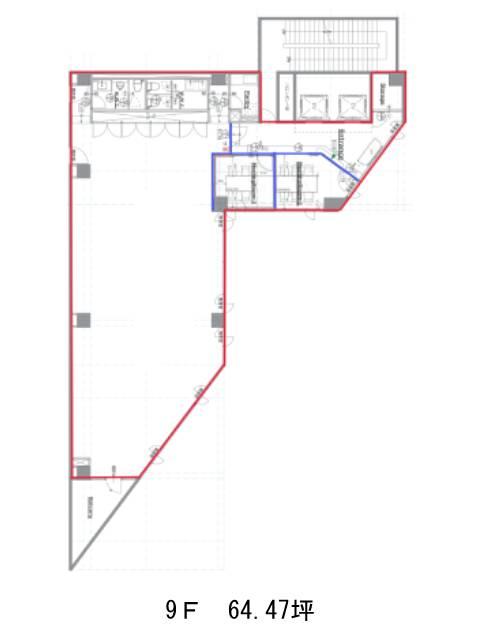
9階は現在募集がありません
MUPER北参道 9階
物件概要
MUPER北参道のテナント募集中区画
現在、空室がございません。
アクセス
MUPER北参道の物件情報
MUPER北参道(渋谷区千駄ヶ谷)は北参道駅(2番出口)から徒歩4分の賃貸オフィスです。1992年竣工、地上10階建て。明治通り沿いにあり、ブルーグレーの外壁に特徴的な凹凸がデザインされた視認性の大変高い建物です。白を基調としたエントランスは明るく、無機質で美しい空間で、その奥にはエレベーターが2基設置されています。L字型に近い執務空間は窓が多いため日当たりが良く、個別空調、OAフロア、バルコニーが備えられ、男女別トイレや給湯などの水回りも綺麗です。また機械式駐車場も併設されていますので、お車での移動もしやすい環境です。近くにコンビニやスーパーが営業していますので、ちょっとしたお買い物に不自由しないでしょう。MUPER北参道は北参道駅(2番出口)の他に原宿駅(竹下口)徒歩9分、国立競技場駅(A4番出口)徒歩10分で利用も可能です。

