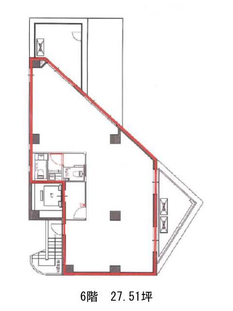
6階は現在募集がありません
Jプロ代々木ビル 6階
物件概要
Jプロ代々木ビルのテナント募集中区画
現在、空室がございません。
アクセス
Jプロ代々木ビルの物件情報
Jプロ代々木ビル(渋谷区代々木)は代々木駅(A1番出口)から徒歩4分の賃貸オフィスです。1989年竣工の地上6階建てです。竣工から時間が経っていますが、新耐震基準を満たし2015年にはリニューアル工事を実施しています。外観はベージュのタイル張りです。入り口の階段を上って中に入ると、木材のパネルがお洒落なエントランスホールにエレベーターが1基設置されています。貸室の間取りや広さは区画により異なりますが、窓が多いため室内は明るく保てます。主な設備として個別空調、OAフロア、給湯を備え、光ファイバーの引き込みも可能ですのでお仕事の快適性が高いでしょう。周辺は落ち着いた雰囲気の住宅街で、南側には広大な明治神宮が位置しています。郵便局やコンビニも駅までの道にありますので、休憩時のお買い物や各種手続きがしやすいでしょう。Jプロ代々木ビルは代々木駅(A1番出口)の他に南新宿駅(出口)徒歩6分、北参道駅(1番出口)徒歩8分で利用も可能です。

