4-5は現在募集がありません
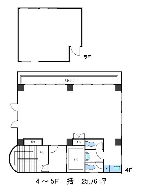
四谷クリエイトビル 4-5
物件概要
四谷クリエイトビルのテナント募集中区画
現在、空室がございません。
アクセス
四谷クリエイトビルの物件情報
四谷クリエイトビル(新宿区四谷坂町)は四ツ谷駅(3番出口)から徒歩6分の賃貸オフィスです。四谷クリエイトビルは四ツ谷駅(3番出口)の他に曙橋駅(A4番出口)徒歩9分、市ヶ谷駅(7番出口)徒歩11分で利用も可能です。

