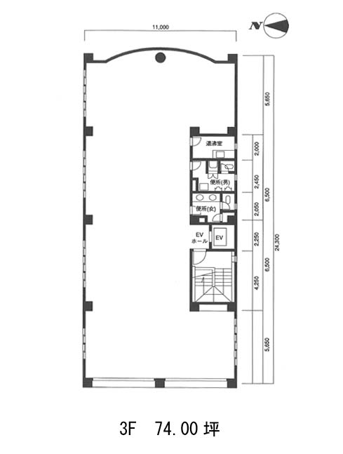
3階は現在募集がありません
カタオカビル 3階
物件概要
カタオカビルのテナント募集中区画
現在、空室がございません。
アクセス
カタオカビルの物件情報
カタオカビル(新宿区四谷)は四ツ谷駅(2番出口)から徒歩4分の賃貸オフィスです。
1985年1月の竣工、新耐震基準を満たした地上3階建てのRC構造の建物です。外観は丸みを帯びたたくさんの光を取り入れることができるおしゃれなガラスブロックが特徴的です。エントランスにはエレベーターが1基設置されております。基準階面積は約70坪。貸室内は綺麗な長方形の為、レイアウトを組みやすく、見通しが良いオフィスとなるでしょう。個別空調、光ファイバー導入済みです。新宿通りを一本入った通りに位置し、緑も多く静かな環境です。徒歩圏内にはコンビニエンスストアやカフェがございます。
カタオカビルは四ツ谷駅(2番出口)の他に四谷三丁目駅(3番出口)徒歩12分、麹町駅(5番出口)徒歩13分で利用も可能です。

