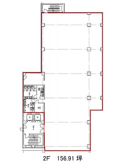
2階は現在募集がありません
WESTALL四谷ビル 2階
物件概要
WESTALL四谷ビルのテナント募集中区画
現在、空室がございません。
アクセス
WESTALL四谷ビルの物件情報
WESTALL四谷ビル(新宿区四谷)は四ツ谷駅(3番出口)から徒歩4分の賃貸オフィスです。1987年竣工、地上4階地下2階建のビルです。ガラスウォールでスタイリッシュな外観をしています。敷地に対しゆとりをもって建てられ、植栽が多く、築年数を感じさせない清潔感があります。設備仕様としてEV2基・機械警備・個別空調・OAフロア・男女別トイレ・非常階段2箇所・湯沸室があります。周辺に飲食店やコンビニが充実しており、ランチにご利用頂けるでしょう。WESTALL四谷ビルは四ツ谷駅(3番出口)の他に四谷三丁目駅(3番出口)徒歩11分、曙橋駅(A4番出口)徒歩12分で利用も可能です。

