3階は現在募集がありません
四谷林ビル 3階
物件概要
四谷林ビルのテナント募集中区画
現在、空室がございません。
アクセス
四谷林ビルの物件情報
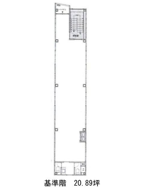
四谷林ビル(新宿区四谷)は四ツ谷駅(2番出口)から徒歩3分の賃貸オフィスです。2011年3月の竣工で3階建てで、新耐震基準に適合した建物です。ブラックを基調としたシンプルな外観は視認性も高く、スタイリッシュで洗練された雰囲気を感じさせるつくりになっております。人通りや交通量の多い新宿通り沿いに位置し、付近にはコンビニエンスストアやカフェ、飲食店も多く営業しております。また、郵便局も近く、利便性の高い立地です。希少な1棟貸しタイプのオフィスビルで、自社ビルをお探しの方にはおすすめです。四谷林ビルは四ツ谷駅(2番出口)の他に四谷三丁目駅(3番出口)徒歩8分、麹町駅(5番出口)徒歩13分で利用も可能です。

