4階は現在募集がありません
吉岡ビル 4階
物件概要
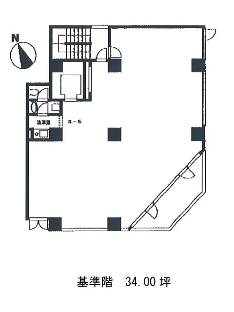
吉岡ビルのテナント募集中区画
現在、空室がございません。
アクセス
吉岡ビルの物件情報
吉岡ビル(新宿区四谷)は新宿御苑前駅(2番出口)から徒歩6分の賃貸オフィスです。吉岡ビルは新宿御苑前駅(2番出口)の他に四谷三丁目駅(2番出口)徒歩9分、曙橋駅(A1番出口)徒歩10分で利用も可能です。

