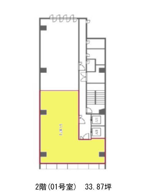
第2タケビル 2階 01
物件概要
物件番号
230-00213-103物件名
第2タケビル所在地
- 東京都新宿区新宿1-9-1
- アクセスマップ
面積
33.87坪賃料(共益費含)
月額707,883円(20,900円/坪)
入居日
即保証金
6,503,040円礼金
なし更新料
なし償却費
なし竣工
1973年3月構造
SRC規模
地上9階/地下1階トイレ
男女別空調
個別空調エレベーター
有セキュリティ
有駐車場
無耐震
旧耐震基準基準階天井高
3150mm空室延床面積
64.47坪情報更新日
2025/12/05第2タケビルのテナント募集中区画
| 階数 | 面積 | 賃料(共益費含む) | 保証金 | 入居可能日 | 検討リスト | 詳細 |
|---|---|---|---|---|---|---|
| 2 | 30.60坪 | 538,560円/月(17,600円/坪) | 477万円 | 即 | ||
| 2 | 33.87坪 | 707,883円/月(20,900円/坪) | 650万円 | 即 |
…新着物件
アクセス
第2タケビルの物件情報
第2タケビル(新宿区新宿)は新宿御苑前駅(2番出口)から徒歩2分の賃貸オフィスです。新宿通り沿いにある、地上9階・地下1階建てのビルです。裏手側も接道していて、交通量の少ない落ち着いた通りになります。ワンフロアは、階数により60坪から70坪ほどの広さがあります。フロア貸しの部屋と、ワンフロアを分割して貸し出している部屋があります。フロア貸しの部屋は、室内に給湯室と男女別トイレが設置されています。分割貸しの部屋は、共用部に設置されています。第2タケビルは新宿御苑前駅(2番出口)の他に新宿三丁目駅(C5番出口)徒歩8分、四谷三丁目駅(2番出口)徒歩9分で利用も可能です。

