8階は現在募集がありません
2フロア募集区画あり

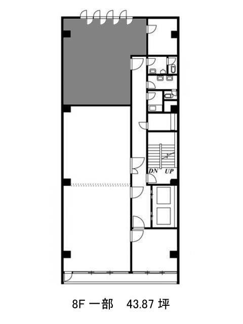
第2タケビル 8階

前の写真 次の写真

物件概要

物件番号

230-00213-90

物件名

第2タケビル

所在地

面積

43.87坪

賃料(共益費含)


入居日

募集終了

保証金

礼金

更新料

償却費

竣工

1973年3月

構造

SRC

規模

地上9階/地下1階

トイレ

男女別

空調

個別空調

エレベーター

セキュリティ

駐車場

耐震

旧耐震基準

基準階天井高

3150mm

空室延床面積

64.47坪

最寄駅

情報更新日

2025/12/05

第2タケビルのテナント募集中区画

階数 面積 賃料(共益費含む) 保証金 入居可能日 検討リスト 詳細
2 30.60坪 538,560円/月(17,600円/坪) 477万円
2 33.87坪 707,883円/月(20,900円/坪) 650万円
…新着物件

アクセス

第2タケビルの物件情報

第2タケビル(新宿区新宿)は新宿御苑前駅(2番出口)から徒歩2分の賃貸オフィスです。
新宿通り沿いにある、地上9階・地下1階建てのビルです。裏手側も接道していて、交通量の少ない落ち着いた通りになります。ワンフロアは、階数により60坪から70坪ほどの広さがあります。フロア貸しの部屋と、ワンフロアを分割して貸し出している部屋があります。フロア貸しの部屋は、室内に給湯室と男女別トイレが設置されています。分割貸しの部屋は、共用部に設置されています。
第2タケビルは新宿御苑前駅(2番出口)の他に新宿三丁目駅(C5番出口)徒歩8分、四谷三丁目駅(2番出口)徒歩9分で利用も可能です。

近隣のエリア・駅から探す