大安ビルのテナント募集中区画
| 階数 | 面積 | 賃料(共益費含む) | 保証金 | 入居可能日 | 検討リスト | 詳細 |
|---|---|---|---|---|---|---|
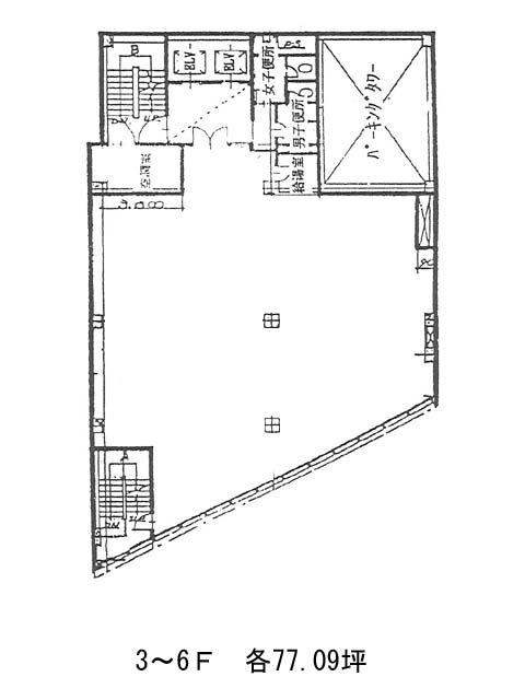
| 6 | 77.09坪 | 2,501,570円/月(32,450円/坪) | 2,266万円 | 即 |
…新着物件
アクセス
大安ビルの物件情報
大安ビル(新宿区新宿)は新宿駅(中央東口)から徒歩2分の賃貸オフィスです。1974年竣工、地上10階地下2階建ての鉄骨鉄筋コンクリート造です。外観は黒で統一されておりシックな雰囲気で高級感があります。新宿駅の東口と西口のちょうど動線上にあるため交通量や人通りが多く、1階にはカフェも入っているのでかなり視認性が高いといえます。主な設備面としては、男女トイレ別、個別空調、機械警備、エレベーター2基完備です。基準階面積は約77坪で、窓が大きく日当たりが良好なのでレイアウト次第では充分に楽しんでいただけます。大安ビルは新宿駅(中央東口)の他に新宿西口駅(出口1)徒歩2分、新宿三丁目駅(E10番出口)徒歩2分で利用も可能です。

