5階は現在募集がありません
1フロア募集区画あり

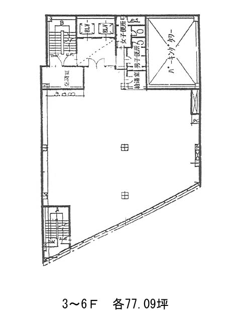
大安ビル 5階

前の写真 次の写真

物件概要

物件番号

230-00405-30

物件名

大安ビル

所在地

面積

77.09坪

賃料(共益費含)


入居日

募集終了

保証金

礼金

更新料

償却費

竣工

1974年5月

構造

SRC

規模

地上10階/地下2階

トイレ

男女別

空調

個別空調

エレベーター

セキュリティ

駐車場

耐震

耐震補強済み

基準階天井高

空室延床面積

77.09坪

最寄駅

情報更新日

2025/10/24

大安ビルのテナント募集中区画

階数 面積 賃料(共益費含む) 保証金 入居可能日 検討リスト 詳細
6 77.09坪 2,501,570円/月(32,450円/坪) 2,266万円
…新着物件

アクセス

大安ビルの物件情報

大安ビル(新宿区新宿)は新宿駅(中央東口)から徒歩2分の賃貸オフィスです。
1974年竣工、地上10階地下2階建ての鉄骨鉄筋コンクリート造です。外観は黒で統一されておりシックな雰囲気で高級感があります。新宿駅の東口と西口のちょうど動線上にあるため交通量や人通りが多く、1階にはカフェも入っているのでかなり視認性が高いといえます。主な設備面としては、男女トイレ別、個別空調、機械警備、エレベーター2基完備です。基準階面積は約77坪で、窓が大きく日当たりが良好なのでレイアウト次第では充分に楽しんでいただけます。
大安ビルは新宿駅(中央東口)の他に新宿西口駅(出口1)徒歩2分、新宿三丁目駅(E10番出口)徒歩2分で利用も可能です。

近隣のエリア・駅から探す