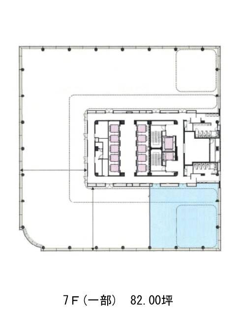
7階は現在募集がありません
新宿ファーストウエスト 7階
物件概要
新宿ファーストウエストのテナント募集中区画
現在、空室がございません。
アクセス
新宿ファーストウエストの物件情報
新宿ファーストウエスト(新宿区西新宿)は新宿駅(7番出口)から徒歩3分の賃貸オフィスです。洗練されたガラス張りのファサードが目を引く大型ビル。その外観同様、エントランスも開放感のある設計で、来訪者への印象にもつながる上質な空間が広がっています。
基準階は約546坪と圧巻の広さを誇り、募集時期によっては100坪前後の分割対応も可能。柱のない整形空間はレイアウト効率にも優れ、天井高2,800mm・OAフロアを備えており、快適かつ柔軟なオフィス設計が叶います。また、1,200kg/㎡の耐荷重を確保したヘビーデューティゾーンが設けられており、重量物の設置や特殊なレイアウトニーズにも対応可能です。
周辺環境はビジネス街としての利便性に加え、敷地前の緑地や整備された街並みにより落ち着きも感じられるエリア。交通利便性と静かな執務環境を両立した立地で、働く人々にとって心地よい環境が整っています。新宿ファーストウエストは新宿駅(7番出口)の他に都庁前駅(A2番出口)徒歩5分、新宿西口駅(D1番出口)徒歩9分で利用も可能です。

