新宿ロイヤルビル 9階 902
物件概要
物件番号
237-00059-124物件名
新宿ロイヤルビル所在地
- 東京都新宿区西新宿7-21-1
- アクセスマップ
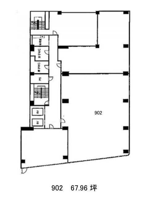
面積
67.96坪賃料(共益費含)
月額1,495,118円(22,000円/坪)
入居日
即保証金
5,572,720円礼金
なし更新料
なし償却費
2ケ月竣工
1971年4月構造
SRC規模
地上9階/地下1階トイレ
男女別空調
個別空調エレベーター
有セキュリティ
有駐車場
有耐震
耐震補強済み基準階天井高
空室延床面積
67.96坪情報更新日
2025/11/21新宿ロイヤルビルのテナント募集中区画
| 階数 | 面積 | 賃料(共益費含む) | 保証金 | 入居可能日 | 検討リスト | 詳細 |
|---|---|---|---|---|---|---|
| 9 | 67.96坪 | 1,495,118円/月(22,000円/坪) | 557万円 | 即 |
…新着物件
アクセス
新宿ロイヤルビルの物件情報
新宿ロイヤルビル(新宿区西新宿)は西新宿駅(1番出口)から徒歩3分の賃貸オフィスです。1971年竣工、地上9階地下1階建ての鉄骨鉄筋コンクリート造です。目の前は大通りで交通量も多いため視認性が高いといえるでしょう。1階には百円ショップ、すぐ隣にはコンビニもあるので急な買い物や日常使いにも大変便利です。主な設備面としてはOAフロア、男女トイレ別、機械警備、個別空調、エレベーター2基、駐車場完備と整った環境です。また、基準階面積は約100坪超と開放感があり無柱空間に近いためレイアウトの自由度も高いでしょう。新宿ロイヤルビルは西新宿駅(1番出口)の他に新宿駅(A18番出口)徒歩5分、新宿西口駅(D4番出口)徒歩6分で利用も可能です。

