5階 502は現在募集がありません
1フロア募集区画あり

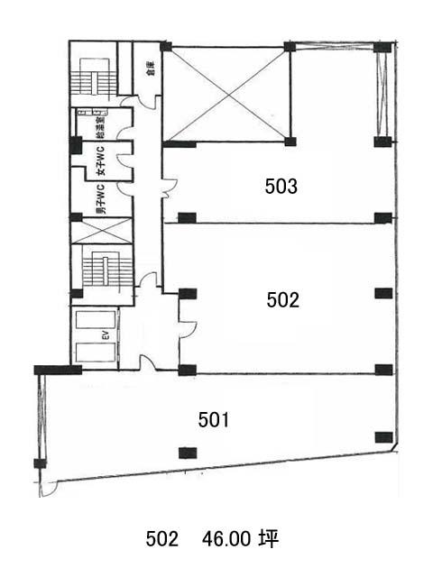
新宿ロイヤルビル 5階 502

前の写真 次の写真

物件概要

物件番号

237-00059-40

物件名

新宿ロイヤルビル

所在地

面積

46.00坪

賃料(共益費含)


入居日

募集終了

保証金

礼金

更新料

償却費

竣工

1971年4月

構造

SRC

規模

地上9階/地下1階

トイレ

男女別

空調

個別空調

エレベーター

セキュリティ

駐車場

耐震

耐震補強済み

基準階天井高

空室延床面積

67.96坪

最寄駅

情報更新日

2025/11/21

新宿ロイヤルビルのテナント募集中区画

階数 面積 賃料(共益費含む) 保証金 入居可能日 検討リスト 詳細
9 67.96坪 1,495,118円/月(22,000円/坪) 557万円
…新着物件

アクセス

新宿ロイヤルビルの物件情報

新宿ロイヤルビル(新宿区西新宿)は西新宿駅(1番出口)から徒歩3分の賃貸オフィスです。
1971年竣工、地上9階地下1階建ての鉄骨鉄筋コンクリート造です。目の前は大通りで交通量も多いため視認性が高いといえるでしょう。1階には百円ショップ、すぐ隣にはコンビニもあるので急な買い物や日常使いにも大変便利です。主な設備面としてはOAフロア、男女トイレ別、機械警備、個別空調、エレベーター2基、駐車場完備と整った環境です。また、基準階面積は約100坪超と開放感があり無柱空間に近いためレイアウトの自由度も高いでしょう。
新宿ロイヤルビルは西新宿駅(1番出口)の他に新宿駅(A18番出口)徒歩5分、新宿西口駅(D4番出口)徒歩6分で利用も可能です。

近隣のエリア・駅から探す