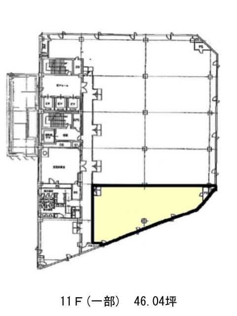
11階は現在募集がありません
日本生命新宿西口ビル 11階
物件概要
日本生命新宿西口ビルのテナント募集中区画
現在、空室がございません。
アクセス
日本生命新宿西口ビルの物件情報
日本生命新宿西口ビル(新宿区西新宿)は新宿駅(3番出口)から徒歩1分の賃貸オフィスです。
1980年の4月に竣工、2004年にはリニューアルを実施しているので、外装内装共に綺麗な状態に保たれており、ビルメンテナンスが行き届いています。大理石をふんだんに使用したエントランスやエレベーターホールは重厚感があり、格調高い雰囲気を醸し出しており、とても印象的です。エレベーター4基設置、セントラル空調、OAフロア完備されております。1階に銀行が入っていることも、嬉しいポイントです。
日本生命新宿西口ビルは新宿駅(3番出口)の他に新宿三丁目駅(E10番出口)徒歩6分、新宿西口駅(D1番出口)徒歩6分で利用も可能です。

