7階は現在募集がありません

日本生命新宿西口ビル 7階

前の写真 次の写真

物件概要

物件番号

237-00009-40

物件名

日本生命新宿西口ビル

所在地

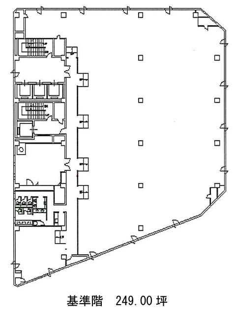
面積

249.00坪

賃料(共益費含)


入居日

募集終了

保証金

礼金

更新料

償却費

竣工

1980年4月

構造

SRC

規模

地上11階/地下3階

トイレ

男女別

空調

セントラル

エレベーター

セキュリティ

駐車場

耐震

旧耐震基準

基準階天井高

2460mm

空室延床面積

最寄駅

情報更新日

2024/02/26

日本生命新宿西口ビルのテナント募集中区画

現在、空室がございません。

アクセス

日本生命新宿西口ビルの物件情報

日本生命新宿西口ビル(新宿区西新宿)は新宿駅(3番出口)から徒歩1分の賃貸オフィスです。
1980年の4月に竣工、2004年にはリニューアルを実施しているので、外装内装共に綺麗な状態に保たれており、ビルメンテナンスが行き届いています。大理石をふんだんに使用したエントランスやエレベーターホールは重厚感があり、格調高い雰囲気を醸し出しており、とても印象的です。エレベーター4基設置、セントラル空調、OAフロア完備されております。1階に銀行が入っていることも、嬉しいポイントです。
日本生命新宿西口ビルは新宿駅(3番出口)の他に新宿三丁目駅(E10番出口)徒歩6分、新宿西口駅(D1番出口)徒歩6分で利用も可能です。

近隣のエリア・駅から探す