3階は現在募集がありません
1フロア募集区画あり

一番町KGビル 3階

前の写真 次の写真

物件概要

物件番号

377-00035-30

物件名

一番町KGビル

所在地

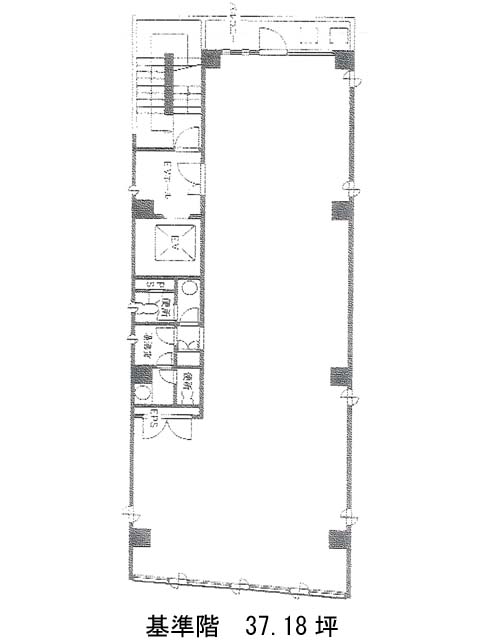
面積

37.18坪

賃料(共益費含)


入居日

募集終了

保証金

礼金

更新料

償却費

竣工

1988年9月

構造

SRC

規模

地上7階/地下1階

トイレ

男女別

空調

個別空調

エレベーター

セキュリティ

駐車場

耐震

新耐震基準

基準階天井高

2450mm

空室延床面積

37.18坪

最寄駅

情報更新日

2025/08/20

一番町KGビルのテナント募集中区画

階数 面積 賃料(共益費含む) 保証金 入居可能日 検討リスト 詳細
5 37.18坪 応相談(応相談) 応相談 相談
…新着物件

アクセス

一番町KGビルの物件情報

一番町KGビル(千代田区一番町)は半蔵門駅(5番出口)から徒歩3分の賃貸オフィスです。
一番町KGビルは半蔵門駅(5番出口)の他に麹町駅(3番出口)徒歩6分、市ヶ谷駅(A3番出口)徒歩9分で利用も可能です。

近隣のエリア・駅から探す