一番町KGビル 5階
物件概要
物件番号
377-00035-40物件名
一番町KGビル所在地
- 東京都千代田区一番町13-7
- アクセスマップ
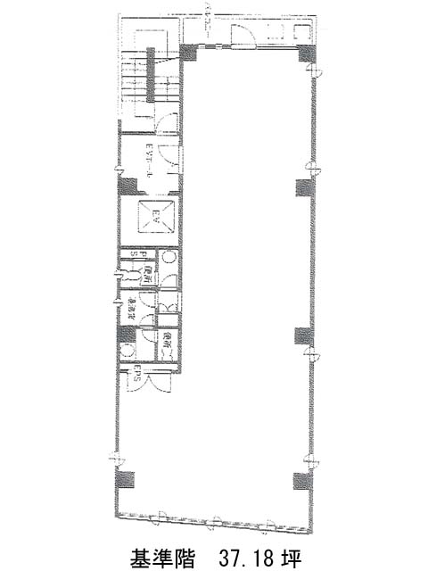
面積
37.18坪賃料(共益費含)
:応相談応相談
入居日
相談保証金
応相談礼金
なし更新料
なし償却費
1ケ月竣工
1988年9月構造
SRC規模
地上7階/地下1階トイレ
男女別空調
個別空調エレベーター
有セキュリティ
有駐車場
無耐震
新耐震基準基準階天井高
2450mm空室延床面積
37.18坪情報更新日
2025/08/20一番町KGビルのテナント募集中区画
| 階数 | 面積 | 賃料(共益費含む) | 保証金 | 入居可能日 | 検討リスト | 詳細 |
|---|---|---|---|---|---|---|
| 5 | 37.18坪 | 応相談(応相談) | 応相談 | 相談 |
…新着物件
アクセス
一番町KGビルの物件情報
一番町KGビル(千代田区一番町)は半蔵門駅(5番出口)から徒歩3分の賃貸オフィスです。一番町KGビルは半蔵門駅(5番出口)の他に麹町駅(3番出口)徒歩6分、市ヶ谷駅(A3番出口)徒歩9分で利用も可能です。

