3階は現在募集がありません
第2紀尾井町ビル 3階
物件概要
第2紀尾井町ビルのテナント募集中区画
現在、空室がございません。
アクセス
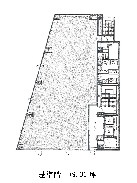
第2紀尾井町ビルの物件情報
第2紀尾井町ビル(千代田区紀尾井町)は麹町駅(2番出口)から徒歩3分の賃貸オフィスです。
第2紀尾井町ビルは麹町駅(2番出口)の他に半蔵門駅(1番出口)徒歩7分、赤坂見附駅(D番出口)徒歩8分で利用も可能です。

