1階は現在募集がありません
1フロア募集区画あり

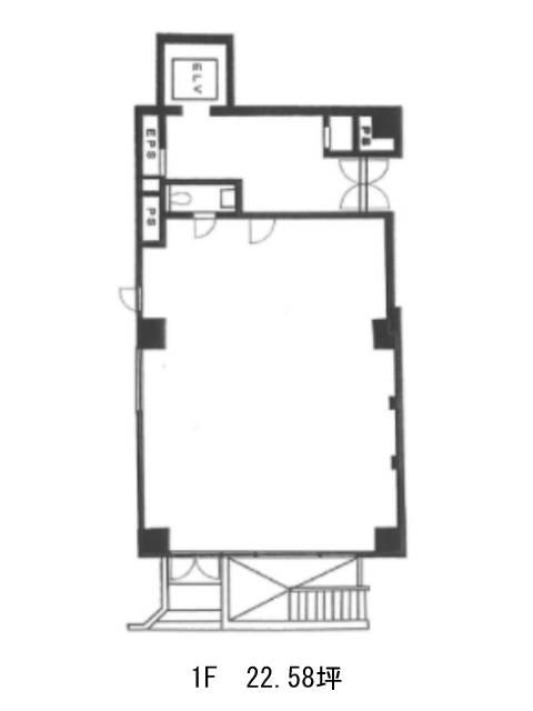
紀尾井ビル 1階

前の写真 次の写真

物件概要

物件番号

384-00028-61

物件名

紀尾井ビル

所在地

面積

22.58坪

賃料(共益費含)


入居日

募集終了

保証金

礼金

更新料

償却費

竣工

1984年2月

構造

規模

地上7階/地下1階

トイレ

男女共用

空調

個別空調

エレベーター

セキュリティ

駐車場

耐震

新耐震基準

基準階天井高

空室延床面積

30.81坪

最寄駅

情報更新日

2025/08/26

紀尾井ビルのテナント募集中区画

階数 面積 賃料(共益費含む) 保証金 入居可能日 検討リスト 詳細
5 30.81坪 576,147円/月(18,700円/坪) 249万円
…新着物件

アクセス

紀尾井ビルの物件情報

紀尾井ビル(千代田区紀尾井町)は永田町駅(9b番出口)から徒歩3分の賃貸オフィスです。
紀尾井ビルは永田町駅(9b番出口)の他に麹町駅(1番出口)徒歩4分、半蔵門駅(1番出口)徒歩7分で利用も可能です。

近隣のエリア・駅から探す