4階は現在募集がありません
五番町光ビル 4階


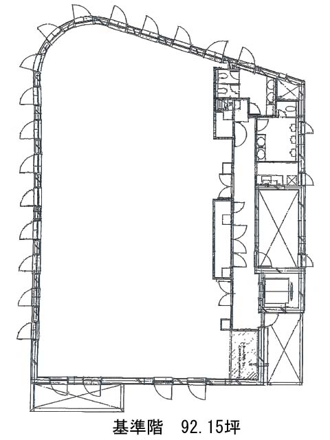
物件概要
五番町光ビルのテナント募集中区画
現在、空室がございません。
アクセス
五番町光ビルの物件情報
五番町光ビル(千代田区五番町)は四ツ谷駅(麹町口)から徒歩5分の賃貸オフィスです。
外観はグレーの御影石で仕上げられており、シックで品格のある佇まいが印象的。竣工から年数を重ねた今でも、その美しさはまったく色褪せておらず、むしろ落ち着きと風格を感じさせる存在です。エントランス周辺は丁寧に手入れされており、外観とは対照的にベージュトーンの明るい内装が広がります。清潔感とあたたかみがあり、来訪者にも好印象を与える空間です。
また、角地に建っているため開放感があり、貸室内からは周囲の緑も望める心地よい眺望が魅力。室内は無柱空間ですっきりとしており、使い勝手のよい構成です。トイレや給湯室は室外に配置されており、室内スペースを最大限に活用できる点もポイント。OAフロア・個別空調完備、24時間対応のセキュリティ(有人+機械警備)、機械式駐車場も備えられており、ビジネス環境としての完成度も申し分ありません。静けさと利便性を兼ね備えた五番町エリアで、質の高いワークプレイスをお探しの企業様におすすめです。
五番町光ビルは四ツ谷駅(麹町口)の他に市ヶ谷駅(出口)徒歩7分、麹町駅(6番出口)徒歩9分で利用も可能です。