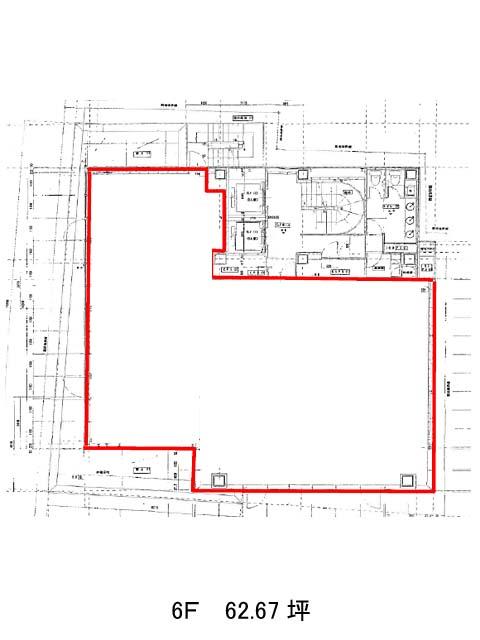
6階は現在募集がありません
サンゴバンビル 6階
物件概要
サンゴバンビルのテナント募集中区画
現在、空室がございません。
アクセス
サンゴバンビルの物件情報
サンゴバンビル(千代田区麹町)は半蔵門駅(1番出口)から徒歩3分の賃貸オフィスです。1999年竣工。新耐震基準を満たした地上8階建てのビルで、安心してご入居いただけます。全面ガラス張りの外観は視認性が高く、室内への採光も良好となっています。エントランスはデザイン性が高く、印象的です。貸室内はフリーアクセス床となっているので、配線しやすいフロアです。設備面は、男女別トイレ、OAフロア、個別空調、光ファイバー、エレベーターは2基設置されています。徒歩圏内にはコンビニエンスストアや飲食店、カフェがございますので利便性が高いです。サンゴバンビルは半蔵門駅(1番出口)の他に麹町駅(1番出口)徒歩4分、永田町駅(9b番出口)徒歩8分で利用も可能です。

