3階は現在募集がありません
麹町昭文社HDビル 3階
物件概要
麹町昭文社HDビルのテナント募集中区画
現在、空室がございません。
アクセス
麹町昭文社HDビルの物件情報
麹町昭文社HDビル(千代田区麹町)は麹町駅(1番出口)から徒歩3分の賃貸オフィスです。
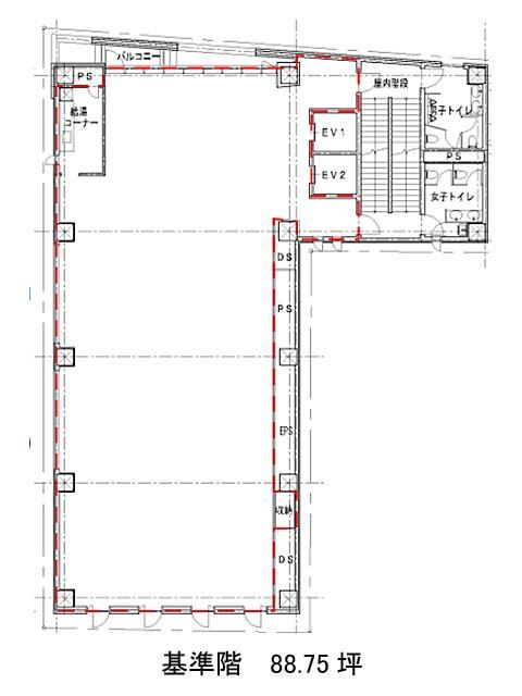
1999年竣工、新耐震基準に適合した9階建てのオフィスビルです。2021年にリニューアルが実施されており、内装、外装共に綺麗な状態です。基準階面積は約80坪、貸室内はフリーアクセスの床を採用しており、OA機器などの配線を気にする心配もなく、また無柱空間で、綺麗な長方形になっていますので、フレキシブルにレイアウトを組むことができます。個別空調、男女別のトイレ設置。
麹町昭文社HDビルは麹町駅(1番出口)の他に半蔵門駅(2番出口)徒歩3分、永田町駅(9b番出口)徒歩8分で利用も可能です。

