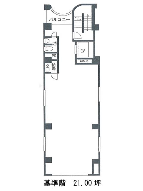
3階は現在募集がありません
望月ビル 3階
物件概要
望月ビルのテナント募集中区画
現在、空室がございません。
アクセス
望月ビルの物件情報
望月ビル(千代田区麹町)は麹町駅(1番出口)から徒歩2分の賃貸オフィスです。
望月ビルは麹町駅(1番出口)の他に半蔵門駅(2番出口)徒歩4分、永田町駅(9b番出口)徒歩7分で利用も可能です。

