3階は現在募集がありません
平河町アライビル 3階
物件概要
平河町アライビルのテナント募集中区画
現在、空室がございません。
アクセス
平河町アライビルの物件情報
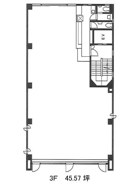
平河町アライビル(千代田区平河町)は麹町駅(1番出口)から徒歩3分の賃貸オフィスです。1979年竣工で地上6階建てのビルです。エレベーターは1基設置。貸室内にはレイアウトを邪魔する支柱が存在しないため、デスク等の配置を自由に組むことができ、フリーアクセス床となっているので、配線しやすいフロアです。個別空調、男女別トイレ設置。機械警備システムを採用しおり、ビルは24時間利用可能となっております。徒歩圏内にはコンビニエンスストアや飲食店、カフェや銀行が営業されていますので、利便性が高いです。平河町アライビルは麹町駅(1番出口)の他に永田町駅(9b番出口)徒歩5分、半蔵門駅(1番出口)徒歩5分で利用も可能です。

