11階は現在募集がありません
owns平河町 11階
物件概要
owns平河町のテナント募集中区画
現在、空室がございません。
アクセス
owns平河町の物件情報
owns平河町(千代田区平河町)は麹町駅(1番出口)から徒歩3分の賃貸オフィスです。2024年竣工、地上9階建て。立体的でデザイン性の高い外観は、洗練された印象と重厚感が共存しています。エントランスや共用部には木目調や間接照明が取り入れられ、温かみと品格を感じさせる空間に仕上がっています。
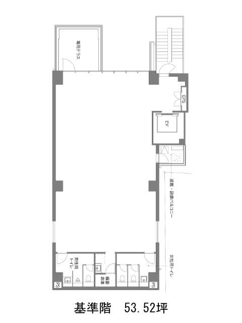
基準階は約53坪、天井高は約3.1mと開放感があり、整形かつ無柱に近いフロアはレイアウトの自由度も申し分ありません。貸室内には水回りもまとめられており、機能面でも無駄のない設計です。また各フロアには専用テラスが設置されており、気分転換やチームでのちょっとしたミーティングにも活用できる、開放的な“もうひとつの居場所”として機能します。
さらに、共用部には入居者専用のラウンジや屋上テラスも完備。自然光と植栽に囲まれながらの休憩や、イベント利用なども可能で、職場の枠を超えたつながりやリフレッシュを促す仕掛けが随所に盛り込まれています。1階には飲食店エリアもあり、エントランスと一体で利用できることで、街とのつながりや活気も感じられる設計です。
3階・11階にはセットアップオフィスも用意されており、家具やWi-Fiも完備済み。拡張やスピーディな入居を検討している企業にとっても、柔軟性の高い選択肢となります。
また本物件は、BELSの最高評価と「ZEB Ready」認証を取得しており、サステナビリティにも配慮。将来を見据えた企業活動を支える環境性能も整っています。owns平河町は麹町駅(1番出口)の他に永田町駅(9b番出口)徒歩4分、半蔵門駅(1番出口)徒歩6分で利用も可能です。

