8階は現在募集がありません
1フロア募集区画あり

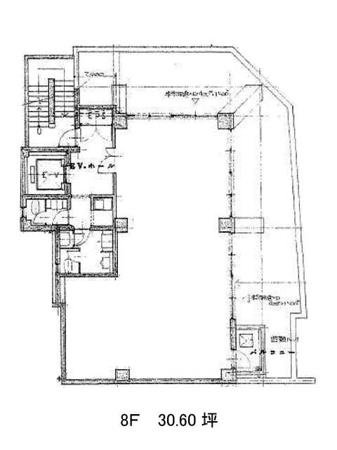
銀座3丁目ビル 8階

前の写真 次の写真

物件概要

物件番号

634-00106-70

物件名

銀座3丁目ビル

所在地

面積

30.60坪

賃料(共益費含)


入居日

募集終了

保証金

礼金

更新料

償却費

竣工

1986年7月

構造

SRC

規模

地上8階

トイレ

男女別

空調

個別空調

エレベーター

セキュリティ

駐車場

耐震

新耐震基準

基準階天井高

空室延床面積

49.98坪

最寄駅

情報更新日

2025/11/12

銀座3丁目ビルのテナント募集中区画

階数 面積 賃料(共益費含む) 保証金 入居可能日 検討リスト 詳細
6 49.98坪 応相談(応相談) 応相談 2026年2月上旬
…新着物件

アクセス

銀座3丁目ビルの物件情報

銀座3丁目ビル(中央区銀座)は東銀座駅(A7番出口)から徒歩3分の賃貸オフィスです。
1986年竣工の新耐震基準を満たした物件です。外観は、全体的にシルバーのパネル張りになっていて、とても清潔感のある印象となっております。ビル内の男女トイレは別となっており、駐車場はありませんが、近くにパーキングがあるため、社用車を使う場合も便利です。室内はL字型の形をしていますが、柱は壁に沿ってあるため、比較的レイアウトは組みやすいでしょう。また周辺には、コンビニや飲食店などが複数あるためとても利便性が高いです。
銀座3丁目ビルは東銀座駅(A7番出口)の他に新富町駅(1番出口)徒歩4分、銀座一丁目駅(11番出口)徒歩5分で利用も可能です。

近隣のエリア・駅から探す