4階は現在募集がありません
1フロア募集区画あり

片帆ビル 4階

前の写真 次の写真

物件概要

物件番号

634-00149-40

物件名

片帆ビル

所在地

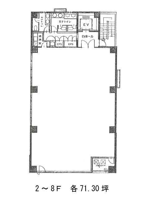
面積

71.30坪

賃料(共益費含)


入居日

募集終了

保証金

礼金

更新料

償却費

竣工

1990年5月

構造

SRC

規模

地上9階

トイレ

男女別

空調

個別空調

エレベーター

セキュリティ

駐車場

耐震

新耐震基準

基準階天井高

2500mm

空室延床面積

71.30坪

最寄駅

情報更新日

2025/11/10

片帆ビルのテナント募集中区画

階数 面積 賃料(共益費含む) 保証金 入居可能日 検討リスト 詳細
2 71.30坪 応相談(応相談) 応相談
…新着物件

アクセス

片帆ビルの物件情報

片帆ビル(中央区銀座)は新富町駅(1番出口)から徒歩4分の賃貸オフィスです。
1990年竣工の新耐震基準を満たしたオフィスビルです。外観は白を基調としたパネル張りになっており、室内はとてもシンプルな構造になっております。基準階は約71坪あり、室内は長方形の整形オフィスのため、比較的レイアウトはしやすいでしょう。ビル内のトイレは男女別となっており、駐車場はありませんが、近くにパーキングがあるため、社用車を使う場合も便利です。また周辺には、コンビニや飲食店が複数あるためとても利便性が高いです。
片帆ビルは新富町駅(1番出口)の他に東銀座駅(A7番出口)徒歩4分、築地駅(4番出口)徒歩6分で利用も可能です。

近隣のエリア・駅から探す