片帆ビルのテナント募集中区画
| 階数 | 面積 | 賃料(共益費含む) | 保証金 | 入居可能日 | 検討リスト | 詳細 |
|---|---|---|---|---|---|---|
| 2 | 71.30坪 | 応相談(応相談) | 応相談 | 即 |
…新着物件
アクセス
片帆ビルの物件情報
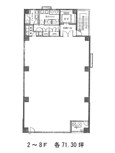
片帆ビル(中央区銀座)は新富町駅(1番出口)から徒歩4分の賃貸オフィスです。1990年竣工の新耐震基準を満たしたオフィスビルです。外観は白を基調としたパネル張りになっており、室内はとてもシンプルな構造になっております。基準階は約71坪あり、室内は長方形の整形オフィスのため、比較的レイアウトはしやすいでしょう。ビル内のトイレは男女別となっており、駐車場はありませんが、近くにパーキングがあるため、社用車を使う場合も便利です。また周辺には、コンビニや飲食店が複数あるためとても利便性が高いです。片帆ビルは新富町駅(1番出口)の他に東銀座駅(A7番出口)徒歩4分、築地駅(4番出口)徒歩6分で利用も可能です。

