シグマ銀座ファーストビルのテナント募集中区画
| 階数 | 面積 | 賃料(共益費含む) | 保証金 | 入居可能日 | 検討リスト | 詳細 |
|---|---|---|---|---|---|---|
| 8 | 46.62坪 | 応相談(応相談) | 応相談 | 2026年2月上旬 |
…新着物件
アクセス
シグマ銀座ファーストビルの物件情報
シグマ銀座ファーストビル(中央区銀座)は東銀座駅(A7番出口)から徒歩2分の賃貸オフィスです。タイルと石材がバランスよく組み合わされたブラウン基調の外観は、控えめながらもセンスが光る印象。来訪者にも好印象を与える、落ち着きある佇まいのオフィスビルです。
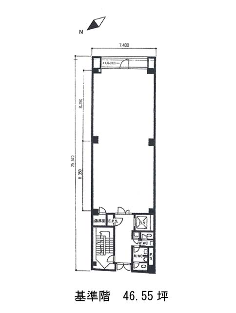
基準階は約46坪、奥行きのある長方形の整形区画で、室内には柱がなく、OAフロア仕様とあわせて自由度の高いレイアウトが可能です。執務スペースをすっきり使える構成で、分割やゾーニングもしやすい設計です。
設備面では、男女別トイレを室外(EVホール側)に配置し、プライバシーと衛生面に配慮。給湯室は執務エリアから直接アクセスできる動線で、日々の業務効率を高めます。セキュリティ面も、機械警備に加えてエレベーター不停止機能を備えており、安心感があります。
周辺にはコンビニや飲食店が点在し、ランチタイムやちょっとした買い物にも便利な環境です。シグマ銀座ファーストビルは東銀座駅(A7番出口)の他に銀座駅(A12番出口)徒歩4分、銀座一丁目駅(11番出口)徒歩5分で利用も可能です。

